自然環境が魅力の大原!四季折々の美しい景観が楽しめる場所で4LDK+S+WICの間取り‼南接道で日当たり良好!清潔な空気と豊かな水源、静かな環境の中でお住まいになりませんか!

一戸建て(物件番号: 200-06312)
この物件は ? 人の方が見ています

new
所在地 静岡県静岡市葵区大原 価格 2,650万円
しずてつジャストライン 株田 徒歩 2分

外観写真

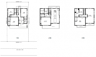
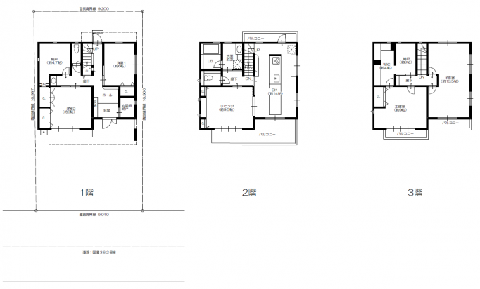
敷地面積 145.45㎡(43.99坪) 築年数 14年
所在地 静岡市葵区大原 建物面積 168.93㎡(51.10坪)
小学校区 中藁科小 中学校区 藁科中
現況 空家 引渡し時期 相談
地目 宅地 都市計画 市街化調整区域
用途地域 指定無し 建ぺい率 60%
容積率 200% 土地権利 所有権
間取り 建築構造 RC造3階建
上水道 その他 下水道 公共
ガス   駐車場  

アクセスマップ

ローンシミュレーション

※ご返済額は、金利0.9%・返済年数40年・ボーナスや頭金を含まない場合の目安です。詳細はお問い合わせください。

物件の価格

2,650万円

月毎のご返済額

ボーナス払い(×年2回)

この物件についてお問い合わせ

会員登録いただくと、物件についてのお問い合わせが可能です。

 かんたん会員登録

この物件の条件に近い物件

最新
情報
種別
物件番号
写真 所在地 価格
(万円)
土地土地(㎡)
建物建物(㎡)
専有専有(㎡)
構造・間取り
築年月
交通
駅名
詳細
new 一戸建て
200-06278
静岡県
静岡市葵区田町5丁目
**** 土地170.64
建物183.32
鉄骨造2階建
4SDK
50年
しずてつジャストライン 田町5丁目 会員登録
new 一戸建て
200-06270
静岡県
静岡市葵区羽鳥5丁目
**** 土地135.00
建物119.24
木造2階建
4SLDK
10年
しずてつジャストライン 服織小学校入口 会員登録
  一戸建て
200-06099
静岡県
静岡市葵区南瀬名町
**** 土地135.13
建物115.09
木造2階建
4SDK
31年
しずてつジャストライン 南瀬名町 会員登録
値下げ 一戸建て
200-06295
静岡県
静岡市葵区平和3丁目
**** 土地102.51
建物89.10
木造2階建
3LDK
1年未満
しずてつジャストライン 籠上中 会員登録
new 一戸建て
200-06210
静岡県
静岡市葵区上伝馬
**** 土地115.44
建物95.58
木造2階建
4SLDK
1年未満
しずてつジャストライン 松富 会員登録
特記事項

※不動産物件情報は最新のデータの掲載を心がけていますが、データの書き換えの都合上、売却済みなどの場合はご容赦ください。
※掲載されている不動産物件データが現況と異なる場合は現況を優先します。

物件検索
未公開物件・最新物件を見たい方簡単1分会員登録会員登録をしていただいた方に10大特典を無料で提供!
ログイン 豊富な物件情報をご用意 会員の方はログインをするとより多くの物件情報がご覧いただけます。
Page Top
来店予約 

未公開・新着物件

来店予約 無料会員登録